143平米四居室新房,找熟人全包装修才花费38万,大家觉得值吗?
装修是买房者必须要经历的,很多业主都选择了四居室,大概得143平米的房子来满足日常的需求。这样的房子大多数都会采用全包,其他风格来装修,下面小编就给大家介绍一下中海桃源里小区一幢143平米的房子如何装修?
预算:38万
风格:其他
案例套数:388
项目名称:中海桃源里 项目面积:143㎡风格:港式轻奢主要材质:意德法家产品门、橱柜,卡迈砖,汉斯格雅洁具,奥普吊顶等。设计师按照业主的喜欢为业主选了港式轻奢风格,整体布局较为流畅,在硬装部分设计师的颜色、线条较为简洁又不失美观,在满足功能的情况下,设计师多为业主考虑,本案采用大理石铺砌墙面和地面,纹理清晰自然,令空间线条简单又丰富,搭配优雅却不繁复的家具,塑造出高贵典雅又不显繁复累赘的空间形象,使得日常生活更具品位与格调。
客厅是我们日常生活中带人接客的主要场所,所以一个端庄大气的客厅才是最好的选择。要集实用与大方于一体,功能性强才是最好的装修。

客厅空间以大理石和护墙板为主,使整个空间整体宽敞、明亮,大气,家具、吊灯的组合营造出典型的轻奢主义风范简洁而不失华丽。
卧室是我们的隐私区间,再设计上可以装扮的温馨浪漫一点,通过一些元素的修饰,营造出淡淡的情调,也让卧室空间变得很别致,更加有家的味道。

本案空间在色彩搭配上都是以浅色调为主,色彩明度较高,而且整体差异不大,令空间呈现出一种既舒雅又轻快的气氛。

素淡的主色,配上沉稳的深咖色、棕色等,加强了空间气氛的安静平和,令人感到舒适。在加上不同色彩的点缀色,如抱枕、挂画、花卉、艺术品等软装饰品,让空间呈现轻舞飞扬的活力。
一张桌子几把椅子就可以组成餐厅了,现在餐桌的选择很多,市面上的材料也很多,有大理石的、实木的、玻璃的,在挑选上可以跟自家的风格进行搭配。

餐厅空间以白色硬包饰面为主确定了空间明净沉稳的基础气质,打造出一个舒适宜人的就餐环境。
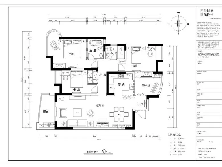
以下就是本套中海桃源里小区143平米四居室房子的户型图。

中海桃源里143㎡港式轻奢装修平面布置图
这就是小编为大家介绍的关于143平米的四居室,全包方式用了38万元的装修介绍了,大家可以看看每一个区域的设计是不是您也喜欢,希望小编总结的这些知识能够为您带去帮助。
仅仅花了50万元,就把158平米的三居室装修的美轮美奂!-雅居乐花园装修
刚买了一套新房子,选择了全包的方式来装修。找了熟人介绍的装修公司,忙活了几个月终于装修完了。我家这套雅居乐花园的158平米三居室新房,找熟人全包装修才花费50万,大家觉得值吗?
预算:50万
风格:现代
案例套数:419
在本案设计中,设计师通过感性的思维和理性的手法,将多种现代的元素,巧妙融合,汇成一派。让业主生活在其中,既享受到高品质的细节、个性化的亮点,却又不失居家的温馨、人性化的氛围,体验到高品质家居带来的生活新主张。
客厅是全家活动、娱乐、休闲、团聚、就餐等活动场所,又是接待客人、对外联系交往的社交活动空间。在满足起居室多功能需要的同时,应注意整个起居室的协调统一;各个功能区域的局部美化装饰,应注意服从整体的视觉美感。

走道采用黑与白对比;在材质上,采用地砖与地板对比

设计师通过感性的思维和理性的手法,将多种现代的元素,巧妙融合,汇成一派

本案不是强调奢华塑造,而是通过低调的处理方式,重新诠释了华美的生活定义

客厅以大块面的壁纸及一色地砖衬映出干净利落的空间,深色皮革沙发与电视柜平衡了客厅的空间感。
对于卧室来说,不宜过长或者过大,一个是狭长的空间不好布置,并且容易让人产生孤独感。为了规避这种现象,我们可以将它一分为二,在内部添加个衣帽间或者书房等等。

居家的温馨、人性化的氛围,带来高品质家居带来的生活新主张
餐桌的选择需求注意与空间大小配合,小空间配大餐桌或者大空间配小餐桌都是不合适的,因为购买的实质问题,业主很难把东西拿到现场开展比较,因此,在餐厅装修的时候先测量好所喜好的餐桌尺寸后,拿到现场做比较,可避开过大过小。

餐厅成品地柜配以马赛克镶边的吊柜,与吧台、餐桌椅形成完整的构成关系
厨房合理设计能使我们在使用厨房的时候变得更加轻松,方便。厨房是潮湿易积水的场所,所以表面装饰用材都应选择防水耐水性能优良的材料。

厨房为开放式,意德法家的烤漆橱柜与金属砖完美的搭配,将现代风格的质感展现无遗
玄关的入户鞋柜和置物架是非常实用的。鞋柜的造型比较多,如果选择了底部没有腾空的,那么清洁时就会有点小麻烦。置物架可以摆放在鞋柜上,刚好可以放置一些钥匙、手机等小物件。

玄关服务于业主健身休闲的功能,是承接电梯间与室内的过渡空间
以下就是本套雅居乐花园小区158平米三居室房子的户型图。

现代三居室装修平面布置图,体验高品质家居生活

现代三居室装修原始结构图,体验设计思维的理性
以上就是小编为大家介绍的关于158平米的三居室装修的相关知识了,把房子交给了装修公司,选择全包的方式仅仅用了50万元是非常划算的,希望能够为您今后的装修带去帮助。
相关问答
意德法家橱柜怎么样,价格贵吗?
我觉得意德法家橱柜挺好用的,它拥有高端的工艺设备,老板橱柜组件了专业的设计研发队伍,产品系列丰富,品种和款式多样,可选性大,满足差异化的消费需...
爱德法家橱柜怎么样?
还可以;去年上半年订了一套橱柜也没什么问题,整体来说不错,性价比还是比较高;还可以;去年上半年订了一套橱柜也没什么问题,整体来说不错,性价比还是比较高;


微信扫一扫打赏
支付宝扫一扫打赏
